入社して3か月が経ち、業務の流れや内容が少しずつ分かってきたように思います。
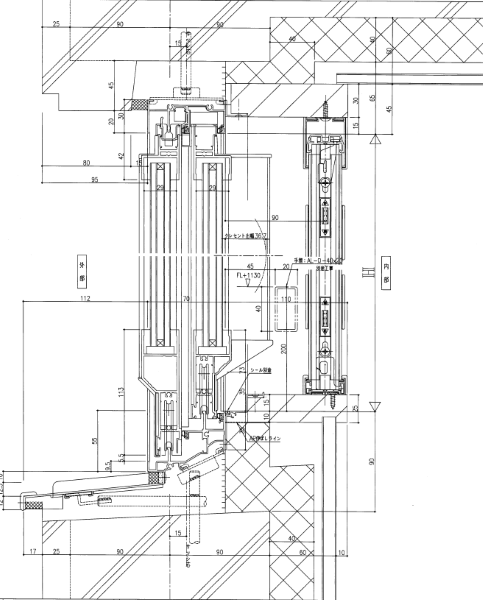
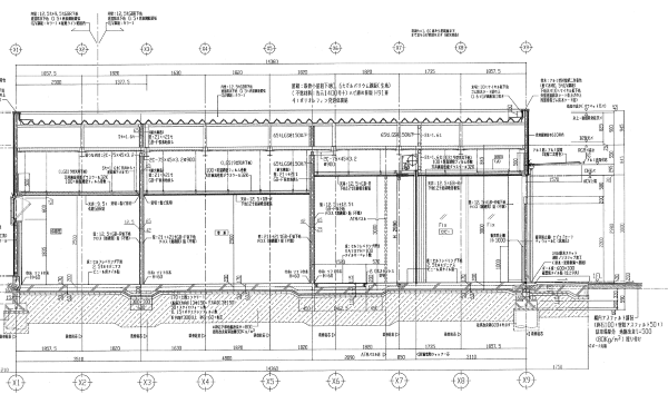
未経験での入社だったため、最初はサッシの種類や図面の見方が分からず戸惑うことも多くありましたが、最近では理解できることも増えてきて、自分の成長を実感できて嬉しく感じます。覚えることが多く大変ですが、先輩方が丁寧に教えてくださるおかげで、気負うことなく仕事に取り組めています。
これからも学ぶことは多いと思いますが、少しずつ理解を深めながら頑張って取り組んでいきたいと思います。


また、前職より休日が増えたことでプライベートも充実しています。
飼っているうさぎと過ごす時間が増え、毎日癒されています。
最近のマイブームはお洒落なご飯屋さん巡りで休日の楽しみの一つになっています!

